Каркасный дом в стиле Барнхаус 115м2 отличается уникальным шармом и сочетанием природных и современных элементов. Он станет не только красивым, но и практичным местом для жизни и отдыха.
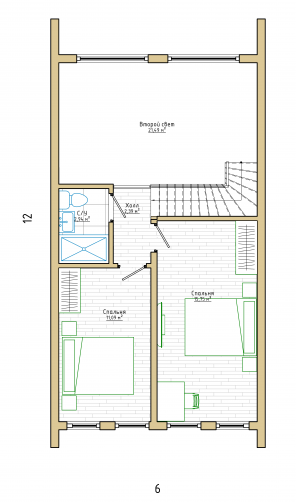
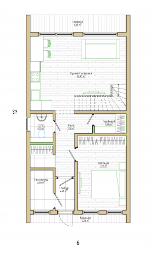
Общая площадь дома 115м2
Тёплый контур 107м²
Кухня-гостиная – 1
Спальня – 3
Гардеробная - 1
С/узел — 1
Тех. помещение — 1
В стандартную комплектацию входит:
-переливной септик на 6м3.
-все инженерные коммуникации включая теплый пол
-идеально ровный пол (п/сухая стяжка)
-идеально ровные стены (гипсокартон),
-фасад и кровля КЛИК ФАЛЬЦ + планкен (скрытый крепеж)
-5-ти камерные окна VЕКА с хорошей фурнитурой и мультифункциональным покрытием.
Ждем ваши заявки! С удовольствием воплотим вашу мечту в жизнь!
Выбор местоположения
Мы свяжемся с Вами в течение дня.