Комплектация «Тёплый контур» — 7,34 млн ₽
Комплектация «White Box» — 11,05 млн ₽
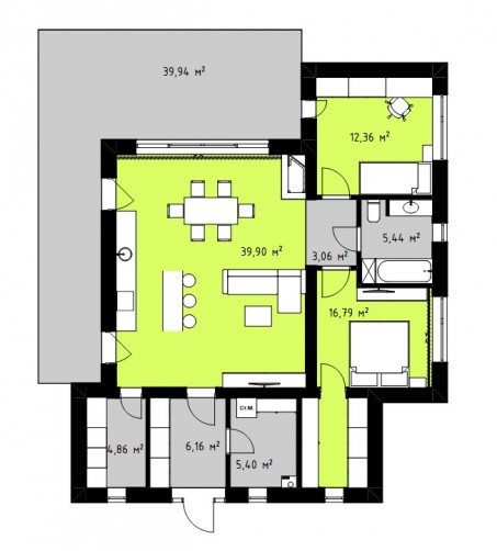
Стильный дом от застройщика "ДМ Групп" готовый раскрыть характер его хозяев. Центром дома является большая кухня-гостиная с высоким потолком. В остальных помещениях проектом предусмотрена классическая высота потолков. 2 спальни и разделены туалетной комнатой.
Дом сдается в отделке white box. Гипсовая штукатурка Knauf под обои.
Комплектация дома:
- Утепленный фундамент;
- Отмостка: Мягкая;
- Стены: АГБ 300 мм с утеплением 100мм. Перегородки из блока 150мм. Высота потолка 2,85, 4,5м;
- Фасад: Штукатурка;
- Плоская кровля: Выполнена из ПВХ мембраны по системе Технониколь со сроком службы от 20 лет. Пароизоляция битумный наплавляемый материал, утепление экструдированный пенополистирол XPS 200 мм, мембрана 1,5 мм;
- Дверь входная: Тëплый алюминий с терморазрывом и тонированным стеклом;
- Окна: Энергоэффективный 5-ти камерный профиль Veka, с замкнутым армированием, стеклопакет 40 мм. Фурнитура Winkhaus;
- Электромонтаж: Провода использованы ГОСТ ВВГнг LS. Все магистрали в гофре, на каждую комнату установлен отдельный дифференциальный автомат. Заземление.
В электрощитке есть реле контроля напряжения, которое защитит бытовую технику от нежелательных перепадов напряжения;
- Отопление: Выполнено трубой stout 16х2 металлопластик.Теплые подоконники. Нет соединений в полу цельная труба от подоконника до коллектора. Теплые полы выполнены с шагом 15 см в каждой комнате отдельный контур, что позволяет регулировать температуру в каждом помещении по разному. Разводка умного отопления. Электрический котел и бак теплообменника выполнен из нержавеющей стали, так же как и тэны;
- Водопровод: Выполнен по технологии Axiopress с использованием трубы и фитингов PEXa. Реализована циркуляция горячей воды, что позволяет практически сразу пользоваться горячей водой. Вся система перед заливкой опрессована давлением 8 бар;
- Вентиляция: Естественная;
- Канализация: Переливной септик V=7,5м3;
- Ливневая канализация: Сбор осадков выполнен с помощью внутреннего водостока с подогревом и отводом стоков с крыши в ливневый колодец;
- Пол: Залит под чистовую отделку;
Выбор местоположения
Мы свяжемся с Вами в течение дня.